Bilder
Infos
Preise
Service
360° Tour
Anfahrt
Kontakt
Workshopraum
Greenscreen Studio
Fotomietstudio
News
Referenzen
Partner
Datenschutz
Loft 506 - Mietstudio München
Bilder
Infos
Preise
Service
360° Tour
Anfahrt
Kontakt
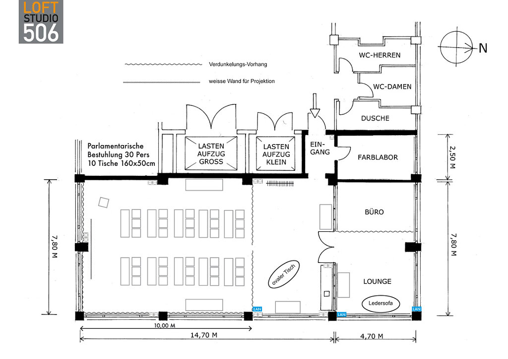
Parlamentarische Bestuhlung für 30 Personen mit 10 Tischen
Bild herunterladen:
Large (1024x725)